La consultation de maîtrise d’œuvre est ouverte jusqu’au 30 octobre.
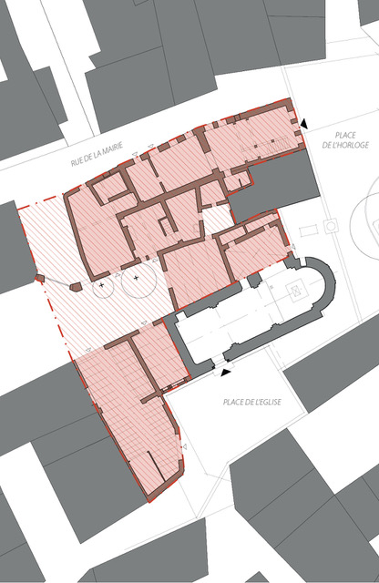
Avec la réhabilitation-extension de la médiathèque et la restructuration de l’îlot attenant, la commune de Valergues engage un projet d’envergure sur un ensemble bâti inoccupé, contigu à l’église Sainte-Agathe (XIe siècle) inscrite à l’inventaire des Monuments Historiques.
Le CAUE de l’Hérault, en partenariat avec l’UDAP, accompagne les élus dans cette démarche volontariste qui consiste à déployer les équipements culturels et associatifs dans des bâtisses acquises récemment (en emplacement réservé au PLU) dans le centre ancien du village.
- Document du CAUE 34
Suite à une réflexion préalable qui a permis d’appréhender les enjeux urbains, architecturaux et patrimoniaux du site, d’évaluer la faisabilité du projet et d’en définir les principaux éléments de pré-programmation, la mission de maîtrise d’œuvre est répartie en deux tranches :
- La réhabilitation de la médiathèque, son extension dans deux bâtisses existantes et l’aménagement d’un patio et d’un jardin en tranche ferme,
- La réhabilitation-reconversion d’un ancien chai en salles polyvalentes et associatives et d’une maison en logement d’urgence, l’aménagement de liaisons piétonnes et d’une cour publique en tranche optionnelle.
Retrouvez tous les détails de la consultation en ligne : Marché de maîtrise d’œuvre pour la réhabilitation-extension de la médiathèque et restructuration de l’îlot attenant
