La commune de Minerve, accompagnée par le CAUE de l’Hérault, a choisi en janvier 2024 Frédéric FIORE, architecte du patrimoine associé à ENCIS Environnement pour mener à bien la requalification des espaces publics du village.
Cet accompagnement, mené en partenariat avec l’UDAP, la DREAL et le Pays Haut-Languedoc-et-Vignobles s’inscrit dans le programme de l’Opération Grand Site (OGS) “Cité de Minerve, gorges de la Cesse et du Brian” qui concerne sept communes.

Crédit photo : CAUE34
La première tranche de travaux concerne l’aménagement du théâtre de verdure, pour un coût prévisionnel estimé à 300 000 € HT.

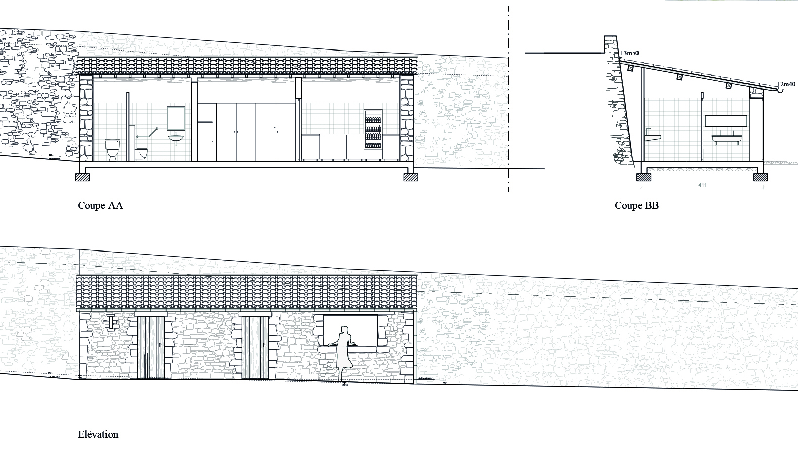
Situé en contrebas des remparts, cet aménagement, simple et sobre, vient s’inscrire dans la logique topographique du site, le petit bâtiment qui abrite les sanitaires et la buvette s’adosse au mur de soutènement existant. Son architecture en maçonnerie de moellons et tuiles canal de récupération est en écho au paysage agricole.

Crédit : Frédéric Fiore, architecte
Après validation du projet par la CDNPS (Commission de la nature, des paysages et des sites), l’architecte avec la commune sont aujourd’hui en phase de consultation des entreprises.

Crédit : Frédéric Fiore, architecte